Retired by Design

Merrill Hall hails from Downeast, otherwise known as the coast of Maine. Now retired, he has spent over 50 years as a design engineer for major technology and tool companies, and as a marine surveyor.

A master draftsman, in the early days he had an eight-foot drawing board, “a moose of a thing” as he describes it. In the early 90’s he was introduced by a friend to AutoCAD. Taking one look at the awkward interface, Hall challenged his friend to a drafting duel. They would both draw a detail of a machine part. It took his friend 40 minutes to do it in AutoCAD. It took Hall only 10 minutes to do it by hand. “I decided then I couldn’t make money with this foolish thing,” said Hall referring to AutoCAD, and decided to stay with paper and pencil awhile longer.

Not long afterwards, still in the early 90’s, another friend introduced him to Ashlar’s computer-drafting software called Vellum running on an Apple. In less than two weeks he was designing even detail drawings in Vellum faster than by hand. “Besides” said Hall, “I didn’t have to erase or keep my leads sharpened.“ The company Hall was freelancing for was looking at a number of CAD programs:

I told the company, ‘If we don’t have Vellum, I’m not going to learn another system. This is the one I want to use, period.’ …From that point on, I’ve never used anything else. Wouldn’t even think of it.

In 2008 he retired from all paid consulting work. Since then Hall has moved from the COM license of Graphite™ to Ashlar-Vellum’s Research/Charitable/Retired (RCR) program which gives him a significant discount on upgrades.

He continues to stay busy designing, constructing and machining parts for the boats of his three sons, including a Herreshoff Harbor Pilot boat which he describes as having “the ugliest cabin you’ve ever seen in your life.” Taking measurements, he laid out the entire hull in Graphite. Then they built up a very elegant boat, appraised at more than double what they had invested in it.

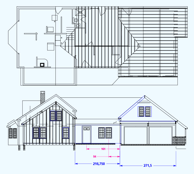
Hall has also done design work on his own house, changing it from a little summer salt box to an elegant four-season residence. The job required detailed design work including the framing, studding and lifting the old house four feet.

Hall concludes:

I just draw on the screen as if I had been drawing on a good piece of mylar. I’m always amazed at how simple the thing is…I can blast out stuff faster than anybody can.

Learn More

See more designs by Merrill among those in these Galleries: