The Elegance of Precision Drafting and Modeling in Ashlar-Vellum Software
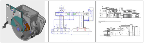
The signature Ashlar-Vellum interface, pioneered for their CAD and 3D modeling programs over 40 years ago, gives today’s software that elegant ease of use. Graphite and Lithium provides precision wireframe drafting or modeling in two and three dimensions on both Mac and Windows platforms.
Nothing is faster or easier to use-period. Our products provides:
- Sketching and Concept Development
- Design Changes and Variations
- Precision Engineering Drawings
- Facilities Planning
- Technical Illustrations
Use it every day, or only once a month. You’ll still draw your ideas faster, with exacting precision and greater ease than with any other software on the market. Ashlar-Vellum software provides all of the power and precision to match the most powerful leaders in the industry, but with unmatched ease of use. From simple sketches to elaborate architectural designs, precision engineering drawings and realistic 3D models, our software expresses the ideas of creative and engineering professionals with precision and speed.
Click below to learn more about our precision drafting and modeling software.
- Enterprise Home
- Unparalleled ease of use for 2D & 3D Drawing & Modeling
- Easy deployment of Drawing & Modeling through out your organization
- Not a bait and switch for other CAD products
- No future risk
- Documentation, support and training options
- Cost-effective pricing